Đệm chống va CSS Fender
- Đệm chống va CSS Fender (Đệm Cell) là một trong những đệm va có thiết kế cực tốt. Với thân cao su hình trụ rỗng, 2 mặt bích được kết nối với kết cấu bê tông của cầu cảng và tấm Panel hướng ra phía tiếp xúc với tàu thuyền. Đệm chống va CSS được thiết kế để làm lệch hướng lên tới 52,5% (So với độ lệch thiết kế cập bến của tàu thuyền).
- CSS Cell Fender có các kích thước chiều cao từ 400mm – 3000mm với 3 cấp cao su khác nhau.

Đặc tính của đệm Cell
- Dễ dàng lắp đặt và sửa chữa.
- Chịu lực cắt ngang cực tốt.
- Chi phí hợp lý so với tính năng hoạt động: Bề mặt tiếp xúc với tàu thuyền rất lớn, tải trọng được phân bố đều trên toàn Panel.
- Nhẹ nhàng và khả năng chịu tải cao.
Ứng dụng của đệm CSS Fender
- Các trạm cập bến của dầu khí.
- Bến du thuyền (Có tính thẩm mỹ rất cao).
- Các bến Hải Quân.
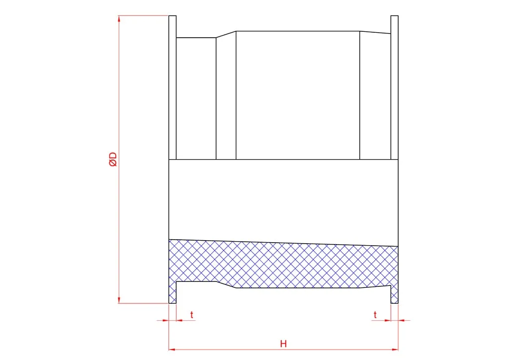
Kích thước đệm chống va CSS

| Đệm CSS Fender | H [mm] | D [mm] | t [mm] | Bulong | Khối lượng [kg] |
| CSS 300 | 300 | 390/330 | 10 | 4 x M16 | 21 |
| CSS 400 | 400 | 650/550 | 25 | 4 x M24 | 75 |
| CSS 500 | 500 | 650/550 | 25 | 4 x M24 | 110 |
| CSS 600 | 600 | 780/660 | 20 | 4 x M30 | 197 |
| CSS 800 | 800 | 1.050/900 | 27 | 6 x M30 | 432 |
| CSS 1000 | 1,000 | 1,230/1100 | 32 | 6 x M36 | 760 |
| CSS 1150 | 1150 | 1,440/1300 | 37 | 6 x M42 | 1,205 |
| CSS 1250 | 1250 | 1,600/1450 | 40 | 6 x M42 | 1,550 |
| CSS 1450 | 1450 | 1,820/1650 | 42 | 6 x M48 | 2,350 |
| CSS 1600 | 1600 | 1,960/1800 | 45 | 8 x M48 | 2,940 |
| CSS 1700 | 1700 | 2,100/1900 | 50 | 8 x M56 | 3,700 |
| CSS 2000 | 2000 | 2,200/2000 | 50 | 8 x M64 | 5,310 |
| CSS 2250 | 2250 | 2,550/2,300 | 59 | 10 x M64 | 7,400 |
| CSS 2500 | 2500 | 2,950/2,700 | 69 | 10 x M64 | 10,280 |
| CSS 3000 | 3000 | 3,350/3,150 | 82 | 12 x M76 | 18,600 |
Chất lượng đệm Cell
- Đệm Cell – CSS Fender có năng lượng hấp thụ và phản lực cực tốt trong các loại đệm chống va.
- Tuổi thọ: 10 – 15 năm.
- Được kết hợp giữa hai loại vật liệu, giúp đệm Cell có độ bền cao.
- Toàn bộ sản phẩm đệm chống va được kiểm định bởi các trung tâm có thẩm quyền cấp chứng nhận đạt tiêu chuẩn về chất lượng.
Lắp đặt trọn bộ đệm chống va CSS Fender – Cell Fender
Hiện tại Cao su Khánh Đạt đã thực hiện việc sản xuất, cung cấp và lắp đặt trọn bộ đệm chống va các loại. Đảm bảo công việc nhanh chóng, suôn sẻ và khép kín.
- Bích neo tàu 10T, 30T, 50T, 75T, 100T, 150T và 200T.
- Tấm Panel.
- Nhựa UHMW-PE.
- Bộ bulong neo.
- Bộ treo: Xích, ma ní, Neo chữ U, Bulong treo.

Các loại đệm chống va khác
Địa chỉ cung cấp Đệm chống va CSS Fender
Cao su Khánh Đạt là một trong những nhà sản xuất chuyên nghiệp về các sản phẩm cao su, đặc biệt là đệm chống va. Được thành lập từ năm 2005, Khánh Đạt đã không ngừng nỗ lực để nâng cao chất lượng sản phẩm và dịch vụ của mình.
Các sản phẩm đệm chống va của Khánh Đạt được sản xuất từ nguyên liệu cao su tổng hợp chất lượng cao, được nhập khẩu từ các quốc gia hàng đầu trên thế giới như Mỹ, Nhật Bản, Đức,… Điều này đảm bảo cho độ bền và tính năng đàn hồi của sản phẩm.
Đệm chống va CSS Fender là một trong những sản phẩm tiêu biểu của Khánh Đạt. Với thiết kế độc đáo và sự kết hợp giữa chất lượng và tính thẩm mỹ, CSS Fender đang được sử dụng rộng rãi trong các lĩnh vực đòi hỏi tính an toàn cao như giao thông, đóng tàu, cầu cảng,…
Nếu bạn đang cần tìm kiếm địa chỉ cung cấp đệm chống va CSS Fender, Khánh Đạt là một trong những địa chỉ đáng tin cậy. Với lợi thế là nhà sản xuất trực tiếp, Khánh Đạt cung cấp sản phẩm với giá cả cạnh tranh và đảm bảo chất lượng sản phẩm. Hơn nữa, Khánh Đạt còn có đội ngũ nhân viên nhiệt tình và chuyên nghiệp, sẵn sàng hỗ trợ khách hàng trong mọi vấn đề liên quan đến sản phẩm và dịch vụ.
Mọi thông tin chi tiết xin liên hệ:
- Mr Đạt – 098 678 1296
- Mr Khanh – 096 581 5688
- Email: sales@caosukhanhdat.vn
- Địa chỉ: Số 191 Định Công Hạ, Hoàng Mai, Hà Nội.




















